Κριτήρια
Τιμή
 
Εμβαδόν
τ.μ.
 
τ.μ.
Δωμάτια
 
Όροφος
 
Έτος κατασκευής
 
Τύπος Θέρμανσης
Μέσο Θέρμανσης

Μεζονέτα προς πώληση

Βούλα, Πανόραμα

€ 1.400.000

Urban Wings
Μεζονέτα προς πώληση Πανόραμα (Βούλα)

Μοντέρνα, Κομψή Μεζονέτα με Ανεμπόδιστη Θέα στη Θάλασσα – Πανόραμα Βούλας

Σε μια σύγχρονη τριώροφη boutique πολυκατοικία στο περιζήτητο Πανόραμα Βούλας, αυτή η εξαιρετική μεζονέτα προσφέρει εκλεπτυσμένη διαβίωση με απεριόριστη θέα στη θάλασσα. Το κτίριο αποτελείται από μόνο δύο αποκλειστικές μεζονέτες, εξασφαλίζοντας ιδιωτικότητα και ηρεμία.

Η συγκεκριμένη μεζονέτα 177,34 τ.μ. αναπτύσσεται σε δύο επίπεδα, στον 2ο και 3ο όροφο, προσφέροντας άνετους, φωτεινούς και σύγχρονους χώρους.

2ος Όροφος – 90,28 τ.μ.
Αποτελείται από κομψό καθιστικό και τραπεζαρία, WC επισκεπτών και ανεξάρτητη πλήρως εξοπλισμένη κουζίνα. Η κουζίνα οδηγεί σε έναν ιδιωτικό εξωτερικό χώρο 73,84 τ.μ. με κήπο και πισίνα—ιδανικό για χαλάρωση και κοινωνικές στιγμές.

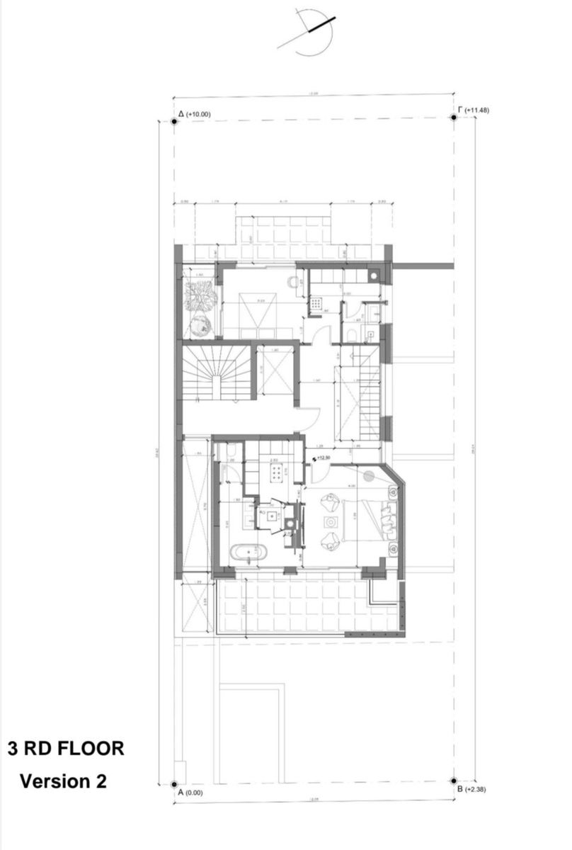
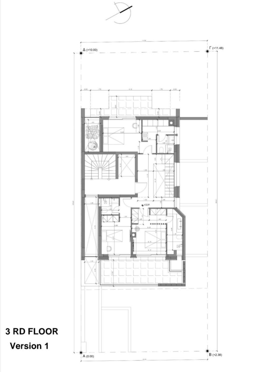
3ος Όροφος – 87,16 τ.μ.
Περιλαμβάνει τρία προσεγμένα master υπνοδωμάτια, όλα με άφθονο φυσικό φως και σύγχρονες παροχές.

Επιπλέον χαρακτηριστικά:
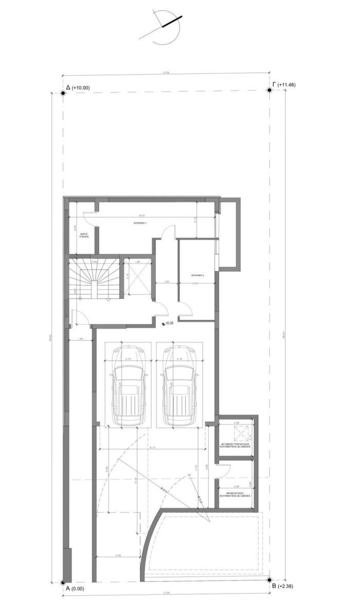
Ιδιωτική θέση στάθμευσης στο υπόγειο
Αποθηκευτικός χώρος 11,52 τ.μ.
Υψηλής ποιότητας κατασκευή και premium υλικά
Ενεργειακή Κλάση A+
Μοντέρνος αρχιτεκτονικός σχεδιασμός με εξαιρετικό φυσικό φωτισμό

Μια σπάνια ευκαιρία για απόκτηση πολυτελούς κατοικίας σε μία από τις πιο εκλεκτές παραθαλάσσιες περιοχές της Αθήνας, που συνδυάζει σύγχρονη κομψότητα, κορυφαία υλικά και συναρπαστική θέα στη θάλασσα.

ID
324
Εμβαδόν
177 τ.μ.
Τιμή ανά τ.μ.
€ 7.910
Περιοχή
Πανόραμα (Βούλα)
Ζώνη
Οικιστική ζώνη
Δωμάτια
3
Όροφος
2ος
Θέση Στάθμευσης
Ναι
Έτος κατασκευής
Υπό κατασκευή
Σύστημα Θέρμανσης
Αυτόνομη θέρμανση (Αντλία Θέρμανσης) - Ενδοδαπέδια θέρμανση
Ενεργειακή κλάση
Α+
Επίπεδα
2
Κουζίνες
1
Σαλόνια
1
Μπάνια
3
WC
1
Κατάσταση
Βαμμένο
Χρήση
Εξοχικό, Επενδυτικό, Tουριστική ενοικίαση
Επιπλέον
Πολυτελές

Χαρακτηριστικά

  • Απόσταση απο τη θάλασσα (μ.): 3000
  • Αποθήκη
  • Ασανσέρ
  • Βεράντα
  • Διαμπερές
  • Δορυφορική κεραία
  • Εμβαδόν μπαλκονιών: 50 τ.μ.
  • Εμβαδόν Οικοπέδου: 450 τ.μ.
  • Εσωτερική σκάλα
  • Ηλιακός θερμοσίφωνας
  • Θέα
  • Ιδιωτικός Κήπος
  • Κλιματισμός
  • Μηνιαία κοινόχρηστα: 120 €
  • Κουφώματα: Αλουμινίου
  • Νυχτερινό ρεύμα
  • Πισίνα
  • Πόρτα ασφαλείας
  • Προσανατολισμός: Ανατολικομεσημβρινός
  • Πρόσβαση από: Άσφαλτο
  • Πρόσβαση για ΑμεΑ
  • Προσόψεως
  • Ρετιρέ
  • Σίτες
  • Συναγερμός
  • Τύποι Υαλοπινάκων: Διπλός υαλοπίνακας
  • Τύπος δαπέδων: Ξύλο
  • Φωτεινό