Κριτήρια
Τιμή
 
Εμβαδόν
τ.μ.
 
τ.μ.
Δωμάτια
 
Όροφος
 
Έτος κατασκευής
 
Τύπος Θέρμανσης
Μέσο Θέρμανσης

Μεζονέτα προς πώληση

Γλυφάδα, Κάτω Γλυφάδα

€ 1.250.000

Urban Wings
Μεζονέτα προς πώληση Κάτω Γλυφάδα (Γλυφάδα)

Πολυτελής minimal ρετιρέ μεζονέτα συνολικής επιφάνειας 151,45 τ.μ., σε εξαιρετική τοποθεσία στη Γλυφάδα, μόλις 1.500μ από τη θάλασσα. Το ακίνητο εκτείνεται σε δύο επίπεδα (3ος όροφος και σοφίτα) και συνδυάζει υψηλή αισθητική με σύγχρονες παροχές.

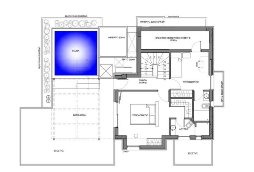
Στον 3ο όροφο βρίσκεται ένας ευρύχωρος και φωτεινός ενιαίος χώρος καθιστικού–τραπεζαρίας–κουζίνας, με μεγάλα ανοίγματα που προσφέρουν άπλετο φυσικό φως. Στο ίδιο επίπεδο υπάρχει 1 master υπνοδωμάτιο και 1 WC.

Η σοφίτα φιλοξενεί 1 επιπλέον master υπνοδωμάτιο και διαθέτει αποκλειστική πρόσβαση σε εντυπωσιακή ταράτσα με ιδιωτική πισίνα 15 τ.μ. και διαμορφωμένο roof garden, ιδανικό για στιγμές χαλάρωσης και φιλοξενίας.

Το ακίνητο διαθέτει συνολικά 3 master υπνοδωμάτια, υψηλής ποιότητας κατασκευαστικά χαρακτηριστικά και ενεργειακή κλάση Α. Περιλαμβάνει ενδοδαπέδια θέρμανση με αντλία θερμότητας, ηλιακό θερμοσίφωνα, κουφώματα αλουμινίου με διπλά τζάμια, πόρτα ασφαλείας και σύστημα συναγερμού.

Επιπλέον παροχές:

2 υπόγειες θέσεις στάθμευσης
Αποθήκη 10 τ.μ.
Διαμπερές και προσόψεως ακίνητο
Πολύ φωτεινό
Τέντες

Ιδανική επιλογή για όσους αναζητούν πολυτέλεια, ιδιωτικότητα και σύγχρονη κατοικία σε μία από τις πιο περιζήτητες περιοχές της Αθηναϊκής Ριβιέρας.

ID
459
Εμβαδόν
152 τ.μ.
Τιμή ανά τ.μ.
€ 8.224
Περιοχή
Κάτω Γλυφάδα (Γλυφάδα)
Ζώνη
Οικιστική ζώνη
Δωμάτια
3
Όροφος
3ος
Θέση Στάθμευσης
Ναι
Έτος κατασκευής
Υπό κατασκευή
Σύστημα Θέρμανσης
Αυτόνομη θέρμανση (Αντλία Θέρμανσης) - Ενδοδαπέδια θέρμανση
Ενεργειακή κλάση
Α
Επίπεδα
2
Κουζίνες
1
Σαλόνια
1
Μπάνια
3
WC
1
Κατάσταση
Βαμμένο
Χρήση
Επενδυτικό
Επιπλέον
Πολυτελές

Χαρακτηριστικά

  • Απόσταση απο τη θάλασσα (μ.): 1500
  • Αποθήκη
  • Ασανσέρ
  • Βεράντα
  • Διαμπερές
  • Δορυφορική κεραία
  • Εμβαδόν Οικοπέδου: 500 τ.μ.
  • Εσωτερική σκάλα
  • Ηλιακός θερμοσίφωνας
  • Θέα
  • Κλιματισμός
  • Μηνιαία κοινόχρηστα: 120 €
  • Κουφώματα: Αλουμινίου
  • Νυχτερινό ρεύμα
  • Πισίνα
  • Πόρτα ασφαλείας
  • Προσανατολισμός: Νοτιοδυτικός
  • Πρόσβαση από: Άσφαλτο
  • Πρόσβαση για ΑμεΑ
  • Προσόψεως
  • Ρετιρέ
  • Σίτες
  • Σοφίτα
  • Συναγερμός
  • Τέντες
  • Τύποι Υαλοπινάκων: Διπλός υαλοπίνακας
  • Τύπος δαπέδων: Ξύλο
  • Φωτεινό